Agrandissement du Cégep Gérald-Godin
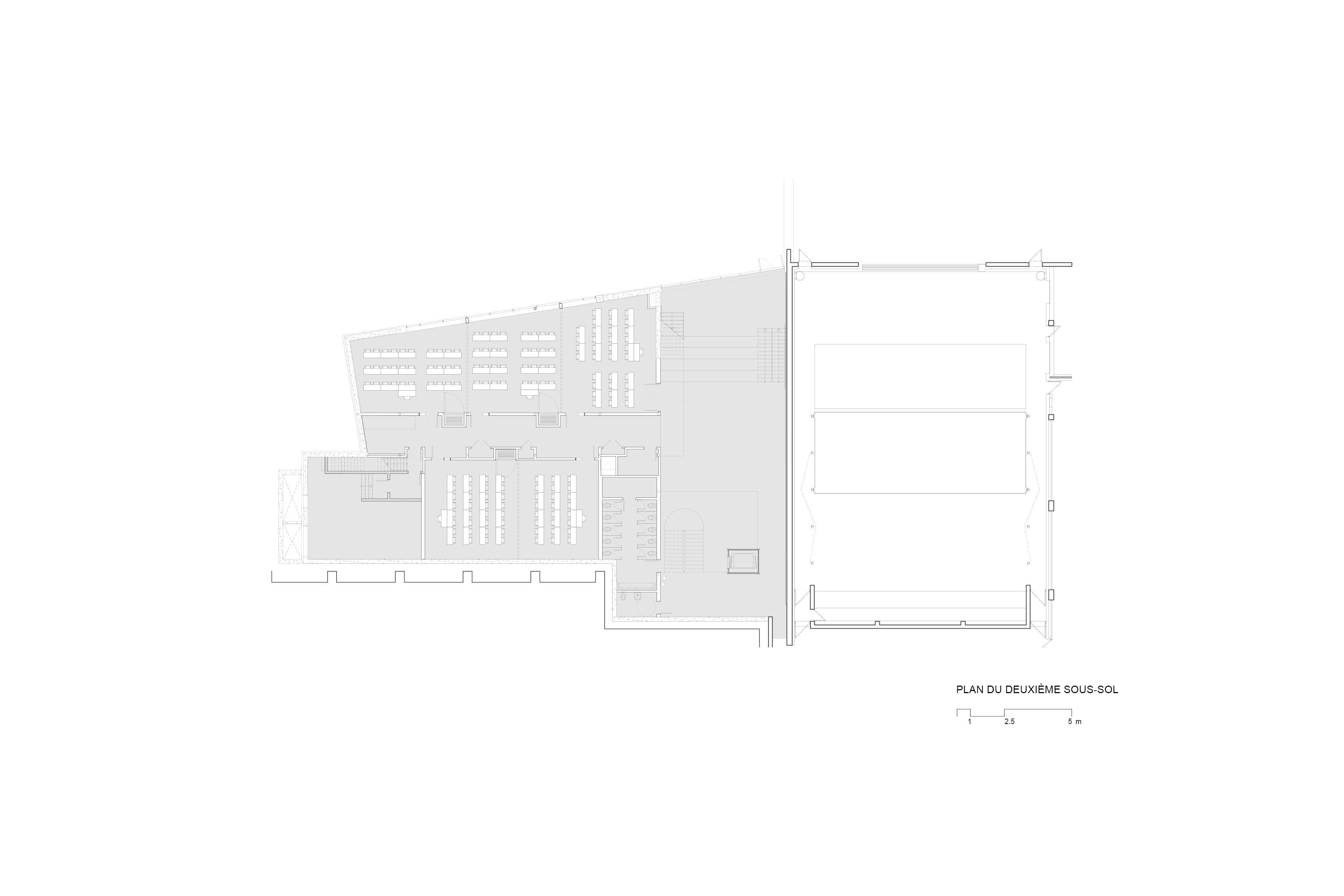
Établi à Sainte-Geneviève, bordé par la rivière des Prairies, le Cégep Gérald-Godin allie patrimoine et contemporain. Construit en 1999, le bâtiment combine un ancien noviciat à une section moderne. En 2019, EVOQ a été mandaté pour agrandir la façade nord et ajouter une mezzanine.
L’extension, discrètement insérée dans le talus, minimise l'impact sur le paysage tout en préservant l’intégrité du site. Un défi clé a été d’apporter la lumière naturelle dans ce bâtiment enfoui sur trois faces. L’Agora, un espace en double hauteur surmonté d’un édicule, permet à la lumière de pénétrer en profondeur.
Une nouvelle entrée en verre assure la continuité spatiale et l’accès à la salle Pauline-Julien. La mezzanine, dans la cafétéria, accueille désormais des salles d’enseignement et des bureaux pour les professeurs.
2012 m²
Alexis Charbonneau
Patrice Sénécal
Carolyne Fontaine
Finalistes, Prix d’excellence en architecture
Ordre des architectes du Québec (OAQ)













